Office space available for rent in Brooklyn Center, close to Minneapolis. The property is located off Hwy 100 and 694.
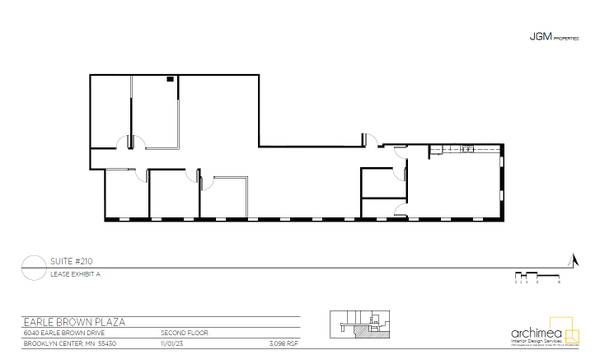
The space is 3,098 square feet and consists of the following layout:
- Reception
- Storage closets
- 5 private offices
- Large break room/conference room
- Open space for cubicles, or we could build more private offices if needed
Visit the link below to view a virtual tour of this space:
https://jgmproperties.com/3d-model/3098-sqft-brooklyn-center-office-space-for-lease/
If you'd like more info or to schedule a showing call Eli at 612-290-1037
or
Check the link below for more details:
https://jgmproperties.com/property/earle-brown-plaza/